Point Layout - How To Use

  • Updated

The Purpose of Point Layout

To use “Point Layout,” you first need to be stationed (i.e. the tool needs to know the coordinates it is located at on your jobsite). Please make sure you station your tool before attempting to use “Point Layout.”

This application is designed to guide you to various points based on coordinates. Typically, these coordinates are automatically derived from objects from within the CAD drawing you are using (such as end of lines and center of circles), but coordinates can also be typed in manually if that is applicable.

A helpful video of the application can be found below:

Select the application from the menu

When you are ready to conduct point layout, find the application from the home screen or from the side menu in CAD view of your project.

Understand the view and working options

Once you are in the application, it is important to set yourself up for success by determining the data you want to be able to work with, as well as how the software guides you to your points.

Your point list

While not necessary, it can be be common to work with pre-loaded layout points. If this is your case, it’s often beneficial to make sure only “layout points” are showing on the left side point menu. If this could benefit you, filter your point list by pressing the filter icon in the left-hand point menu, and selecting only “layout points” to be shown.

 

Note: if you do need to add a new layout point to your project based on its coordinate values, you can add that layout point here in the point menu by pressing the "edit" pencil. Otherwise, creating unique points can also be done by the several "draw" functions within the application menu.

To understand more filtering and point view options, see this article.

Centering your View

It is also helpful to know how to optimize your working window when doing point layout. From the right side menu, you will see the option to “Center View on Target.” In general, it is best to have this turned off if you are panning your CAD file to find a point to layout, and best to have this turned on when you are following the prism or laser to your point.

All this option does is centers the view window on your prism or laser’s current location, or, it allows you to freely pan your CAD file. 

When this option is turned off, a location icon will appear at the top  of your screen, which you can press to automatically return to the location where the tool is locked to a prism.

Choosing the Type of Points you Would like to Layout

You also have the option of choosing what, exactly, you want to layout. Do you want to layout the points that already exist in your point list (“Points”), do you want to layout CAD elements in your CAD file, even if the points don’t technically exist in your point list (“Temporary Points”), or do you want to do both?

These many view and filter options should help you set up your layout process to your liking.

Conduct your Layout

Before you conduct your layout, make sure that you have selected the correct icon at the top of the screen to indicate what you are laying out with. Are you connected to a prism or are you laying out with the laser?

Also, remember that you can click on the camera icon on the bottom right side of the screen to have a camera pop-up window within your CAD file as you layout.

Laying out Points from your Point File

To layout points already pre-loaded into your project, simply either tap the points from the point menu on the left or tap the points as they are located within the CAD file, and the tool will automatically begin guiding you to the point.

By default, the settings will guide you to the point assuming you are looking at the tool as you walk to the point. For instance, in the screenshot below, the tool is assuming you are looking at it, suggesting that the center of the layout point is located .002m (2mm) closer to the head unit.

Laying out Points from CAD (“Temporary Points”)

To layout points based on the CAD elements in your project, make sure you have temporary points selected, and click on the type of CAD elements you would like to layout. Typically, these are ends of lines, centers of circles, and intersections of lines.

With temporary points enabled, you can tap throughout your CAD file to layout the different point types you have selected. The layout process will be identical to what it would be if you were laying out pre-loaded points.

Stake your Point

Finally, once you press the red “measure” button on the far right side, you have “staked” your point – and it will show up green or red in your staked point menu on the left, depending on if it was laid out within the tolerance settings you have.

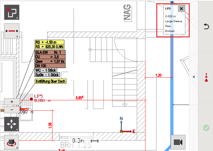
Notice that at the bottom of the right side menu, you have the option to “show stake dialog.” By default, this is turned on for you to add any additional data to the point you just laid out – adding attribute notes, defining the layer you would like the point to be on, or even re-naming the staked point.

You can turn off this menu if it is not relevant to your workflow.

Once a point has been laid out successfully, the software will immediately guide you to the next relevant point in your file.

Export Staked Point Data as Needed

It is always possible to export your data – the staked points will always be followed by a “_Stk” in the point export menu, so you can compare their location to where the original point was designed to be in the CAD file. See this article for more information about point exporting.

Other Layout Settings from the Settings Menu

If you prefer to see your layout view in a “jobsite north” view, go to your general settings, and in the Screen and View Settings, you’ll see the option to change the map orientation to “North” rather than “Free.”

There are other layout settings in here that you can adjust as needed to create the layout experience to your liking.

Auto Zoom: Turn on or off the tool from zooming in close to your point as you layout automatically.

Attributes Displayed: Show point attributes as you layout your points. This is only applicable if you have already added point attributes to your points. If you do not have point attributes within your point file, it is likely best to keep this display turned off:

Remember What “Tolerance” Means in Settings

You may notice that the tool is turning from red to green as you layout. These colors coordinate to whatever tolerance you have set within the general settings. In the case of this example, the tolerance is set to the pre-determined “good,” meaning the tool will turn green when you are within 8mm of your point. While the tool will still guide you to a 0mm deviation, the color will help indicate when you are within whatever tolerance setting you have made.

Note, you can change the tolerance to be what you prefer it to be depending on your needs.

Was this article helpful?

2 out of 2 found this helpful

Comments

0 comments

Please sign in to leave a comment.