Diseño de Puntos - Cómo Usar

  • Actualización

El Propósito del Diseño de Puntos

Para usar “Diseño de Puntos,” primero necesitas estar ubicado (es decir, la herramienta necesita saber las coordenadas en las que se encuentra en tu sitio de trabajo). Por favor, asegúrate de ubicar tu herramienta antes de intentar usar “Diseño de Puntos.”

Esta aplicación está diseñada para guiarte a varios puntos basados en coordenadas. Normalmente, estas coordenadas se derivan automáticamente de objetos dentro del dibujo CAD que estás usando (como extremos de líneas y centros de círculos), pero también se pueden ingresar las coordenadas manualmente si es aplicable.

Un video útil de la aplicación se encuentra a continuación:

Selecciona la aplicación desde el menú

Cuando estés listo para realizar el diseño de puntos, encuentra la aplicación desde la pantalla principal o desde el menú lateral en la vista CAD de tu proyecto.

Comprende la vista y las opciones de trabajo

Una vez dentro de la aplicación, es importante prepararte para el éxito determinando los datos con los que quieres trabajar, así como cómo el software te guía a tus puntos.

Tu lista de puntos

Aunque no es necesario, es común trabajar con puntos de diseño pre-cargados. Si este es tu caso, a menudo es beneficioso asegurarte de que solo se muestren “puntos de diseño” en el menú de puntos del lado izquierdo. Si esto puede beneficiarte, filtra tu lista de puntos presionando el ícono de filtro en el menú de puntos del lado izquierdo, y seleccionando mostrar solo “puntos de diseño.”

 

Nota: si necesitas agregar un nuevo punto de diseño a tu proyecto basado en sus valores de coordenadas, puedes agregar ese punto de diseño aquí en el menú de puntos presionando el lápiz de "editar". De lo contrario, crear puntos únicos también se puede hacer mediante las varias funciones de "dibujar" dentro del menú de la aplicación.

Para entender más opciones de filtrado y vista de puntos, consulta este artículo.

Centrar tu Vista

También es útil saber cómo optimizar tu ventana de trabajo al hacer diseño de puntos. Desde el menú del lado derecho, verás la opción “Centrar Vista en el Objetivo.” En general, es mejor tener esta opción desactivada si estás desplazando tu archivo CAD para encontrar un punto a diseñar, y es mejor tenerla activada cuando estás siguiendo el prisma o láser hacia tu punto.

Esta opción simplemente centra la ventana de vista en la ubicación actual de tu prisma o láser, o te permite desplazar libremente tu archivo CAD. 

Cuando esta opción está desactivada, un ícono de ubicación aparecerá en la parte superior de tu pantalla, el cual puedes presionar para regresar automáticamente a la ubicación donde la herramienta está bloqueada en un prisma.

Elegir el Tipo de Puntos que Quieres Diseñar

También tienes la opción de elegir qué es exactamente lo que deseas diseñar. ¿Quieres diseñar los puntos que ya existen en tu lista de puntos (“Puntos”), quieres diseñar elementos CAD en tu archivo CAD, incluso si los puntos técnicamente no existen en tu lista de puntos (“Puntos Temporales”), o quieres hacer ambos?

Estas muchas opciones de vista y filtro deberían ayudarte a configurar tu proceso de diseño a tu gusto.

Realiza tu Diseño

Antes de realizar tu diseño, asegúrate de haber seleccionado el ícono correcto en la parte superior de la pantalla para indicar con qué estás diseñando. ¿Estás conectado a un prisma o estás diseñando con el láser?

Además, recuerda que puedes hacer clic en el ícono de cámara en la parte inferior derecha de la pantalla para tener una ventana emergente de cámara dentro de tu archivo CAD mientras diseñas.

Diseñando Puntos desde tu Archivo de Puntos

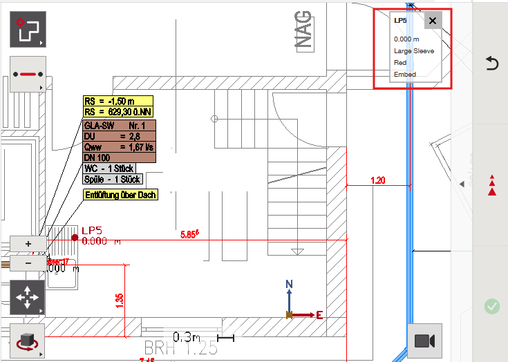
Para diseñar puntos ya pre-cargados en tu proyecto, simplemente toca los puntos desde el menú de puntos a la izquierda o toca los puntos tal como están ubicados dentro del archivo CAD, y la herramienta comenzará automáticamente a guiarte hacia el punto.

Por defecto, la configuración te guiará al punto asumiendo que estás mirando la herramienta mientras caminas hacia el punto. Por ejemplo, en la captura de pantalla a continuación, la herramienta asume que la estás mirando, sugiriendo que el centro del punto de diseño está ubicado a 0.002m (2mm) más cerca de la unidad principal.

Diseñando Puntos desde CAD (“Puntos Temporales”)

Para diseñar puntos basados en los elementos CAD en tu proyecto, asegúrate de tener seleccionados los puntos temporales y haz clic en el tipo de elementos CAD que te gustaría diseñar. Normalmente, estos son extremos de líneas, centros de círculos e intersecciones de líneas.

Con los puntos temporales habilitados, puedes tocar a lo largo de tu archivo CAD para diseñar los diferentes tipos de puntos que has seleccionado. El proceso de diseño será idéntico al que sería si estuvieras diseñando puntos pre-cargados.

Marcar tu Punto

Finalmente, una vez que presionas el botón rojo de “medir” en el extremo derecho, has “marcado” tu punto – y aparecerá en verde o rojo en tu menú de puntos marcados a la izquierda, dependiendo de si fue diseñado dentro de la configuración de tolerancia que tienes.

Observa que en la parte inferior del menú del lado derecho, tienes la opción de “mostrar diálogo de marcado.” Por defecto, esta opción está activada para que puedas agregar cualquier dato adicional al punto que acabas de diseñar – añadiendo notas de atributos, definiendo la capa en la que quieres que esté el punto, o incluso renombrando el punto marcado.

Puedes desactivar este menú si no es relevante para tu flujo de trabajo.

Una vez que un punto ha sido diseñado exitosamente, el software te guiará inmediatamente al siguiente punto relevante en tu archivo.

Exporta los Datos de los Puntos Marcados según sea Necesario

Siempre es posible exportar tus datos – los puntos marcados siempre serán seguidos por un “_Stk” en el menú de exportación de puntos, para que puedas comparar su ubicación con donde el punto original fue diseñado en el archivo CAD. Consulta este artículo para más información sobre la exportación de puntos.

Otras Configuraciones de Diseño desde el Menú de Configuración

Si prefieres ver tu vista de diseño en una vista de “norte del sitio de trabajo,” ve a tus configuraciones generales, y en Configuraciones de Pantalla y Vista, verás la opción para cambiar la orientación del mapa a “Norte” en lugar de “Libre.”

Hay otras configuraciones de diseño aquí que puedes ajustar según sea necesario para crear la experiencia de diseño a tu gusto.

Zoom Automático: Activa o desactiva que la herramienta haga zoom automáticamente cerca de tu punto mientras diseñas.

Atributos Mostrados: Muestra atributos del punto mientras diseñas tus puntos. Esto solo es aplicable si ya has agregado atributos a tus puntos. Si no tienes atributos en tu archivo de puntos, probablemente sea mejor mantener esta visualización desactivada:

Recuerda Qué Significa “Tolerancia” en Configuraciones

Puedes notar que la herramienta cambia de rojo a verde mientras diseñas. Estos colores corresponden a la tolerancia que has configurado en las configuraciones generales. En el caso de este ejemplo, la tolerancia está configurada como “buena” predeterminada, lo que significa que la herramienta se volverá verde cuando estés dentro de 8mm de tu punto. Aunque la herramienta aún te guiará a una desviación de 0mm, el color ayudará a indicar cuando estés dentro de la configuración de tolerancia que hayas definido.

Nota, puedes cambiar la tolerancia a lo que prefieras según tus necesidades.

¿Fue útil este artículo?

Usuarios a los que les pareció útil: 2 de 2

Comentarios

0 comentarios

Inicie sesión para dejar un comentario.