Point Layout - Kuinka käyttää

  • Päivitetty

Pisteiden sijoittelun esittely

Point Layoutin tarkoitus

Käyttääksesi “Point Layout” -toimintoa, sinun tulee ensin olla asemassa (eli työkalun tulee tietää koordinaatit, joissa se sijaitsee työmaallasi). Varmista, että asetat työkalusi paikalleen ennen kuin yrität käyttää “Point Layout” -toimintoa.

Tämä sovellus on suunniteltu ohjaamaan sinua eri pisteisiin koordinaattien perusteella. Tyypillisesti nämä koordinaatit johdetaan automaattisesti CAD-piirroksesta, jota käytät (kuten linjojen päät ja ympyröiden keskukset), mutta koordinaatit voidaan myös syöttää manuaalisesti, jos se on tarpeen.

Sovelluksesta löytyy alla hyödyllinen video:

Valitse sovellus valikosta

Kun olet valmis suorittamaan pisteiden asettelun, löydä sovellus aloitusnäytöltä tai projektisi CAD-näkymän sivuvalikosta.

Ymmärrä näkymä ja työskentelyvaihtoehdot

Kun olet sovelluksessa, on tärkeää valmistautua menestykseen määrittämällä, millaisia tietoja haluat käsitellä ja miten ohjelmisto ohjaa sinua pisteisiin.

Pistelista

Vaikka se ei ole välttämätöntä, on yleistä työskennellä valmiiksi ladattujen asettelupisteiden kanssa. Jos näin on, on usein hyödyllistä varmistaa, että vasemman puolen pistevalikossa näkyy vain “layout points” (asettelupisteet). Jos tämä sopii sinulle, suodata pistelistasi painamalla suodatinkuvaketta vasemmassa pistevalikossa ja valitsemalla näkyviin vain “layout points.”

 

Huomaa: jos sinun täytyy lisätä uusi asettelupiste projektiisi koordinaattiarvojen perusteella, voit lisätä sen pistevalikossa painamalla "muokkaa" kynäkuvaketta. Muuten ainutlaatuisten pisteiden luominen onnistuu myös sovellusvalikon useilla "piirrä" -toiminnoilla.

Lisätietoja suodatus- ja pisteidenäkymävaihtoehdoista saat lukemalla tämän artikkelin.

Näkymän keskittäminen

On myös hyödyllistä tietää, miten työskentelyikkunaa optimoidaan pisteiden asettelussa. Oikean puolen valikosta näet vaihtoehdon “Center View on Target” (keskitä näkymä kohteeseen). Yleisesti on parasta pitää tämä pois päältä, jos selaat CAD-tiedostoa löytääksesi pisteen asettelua varten, ja kytkeä päälle, kun seuraat prismalla tai laserilla pisteeseen.

Tämä asetus keskittää näkymäikkunan prismasi tai laserisi nykyiseen sijaintiin, tai antaa sinun vapaasti selata CAD-tiedostoa.

Kun tämä asetus on pois päältä, näytön yläosaan ilmestyy sijaintikuvake, jota painamalla voit palata automaattisesti siihen kohtaan, jossa työkalu on lukittuna prismaan.

Valitse asettelun pisteiden tyyppi

Voit myös valita, mitä haluat asettaa. Haluatko asettaa pisteet, jotka jo ovat pistelistassasi (“Points”), haluatko asettaa CAD-elementtejä CAD-tiedostostasi, vaikka pisteet eivät teknisesti ole pistelistalla (“Temporary Points”), vai haluatko tehdä molemmat?

Nämä monet näkymä- ja suodatusvaihtoehdot auttavat sinua mukauttamaan asetteluprosessisi mieleiseksesi.

Suorita asettelusi

Ennen asettelun aloittamista varmista, että olet valinnut oikean kuvakkeen näytön yläosasta osoittamaan, millä laitteella asetat. Oletko yhteydessä prismaan vai asetatko laserilla?

Muista myös, että voit klikata kamerakuvaketta näytön oikeassa alakulmassa saadaksesi kameran ponnahdusikkunan näkyviin CAD-tiedostossa asettelun aikana.

Pisteiden asettaminen pistetiedostostasi

Asettaaksesi pisteitä, jotka ovat valmiiksi ladattuna projektiisi, napauta yksinkertaisesti pisteitä vasemman puolen pistevalikosta tai pisteitä CAD-tiedostossa, ja työkalu alkaa automaattisesti ohjata sinua pisteeseen.

Oletuksena asetukset ohjaavat sinua pisteeseen olettaen, että katsot työkalua kävellessäsi pisteeseen. Esimerkiksi alla olevassa kuvakaappauksessa työkalu olettaa, että katsot sitä, ja ehdottaa, että asettelupisteen keskipiste sijaitsee 0,002 m (2 mm) lähempänä pääyksikköä.

Pisteiden asettaminen CAD:stä (“Temporary Points”)

Asettaaksesi pisteitä CAD-elementtien perusteella projektissasi, varmista että “temporary points” on valittuna, ja klikkaa haluamiasi CAD-elementtityyppejä asettaaksesi. Tyypillisesti nämä ovat linjojen päät, ympyröiden keskukset ja linjojen leikkauspisteet.

Kun väliaikaiset pisteet ovat käytössä, voit napauttaa CAD-tiedostossasi eri valittuja pistetyyppejä asettaaksesi ne. Asetteluprosessi on identtinen kuin valmiiksi ladattujen pisteiden asettaminen.

Aseta pisteesi

Lopuksi, kun painat oikean laidan punaista “mittaa” -painiketta, olet “asettanut” pisteesi – ja se näkyy vasemmassa asettelupistevalikossa vihreänä tai punaisena sen mukaan, onko piste asetettu sallitun toleranssin sisällä.

Huomaa, että oikean puolen valikon alareunassa on vaihtoehto “näytä asetteludialogi.” Oletuksena tämä on päällä, jotta voit lisätä pisteelle lisätietoja – kuten attribuuttimuistiinpanoja, määrittää kerroksen, johon piste halutaan sijoittaa, tai jopa nimetä asettelupiste uudelleen.

Voit poistaa tämän valikon käytöstä, jos se ei ole tarpeen työskentelytavassasi.

Kun piste on onnistuneesti asetettu, ohjelmisto ohjaa sinut välittömästi seuraavaan relevanttiin pisteeseen tiedostossasi.

Vie asettelupisteiden tiedot tarvittaessa

On aina mahdollista viedä tietosi – asennetut pisteet tunnistaa pisteviennissä siitä, että niiden perässä on aina “_Stk”, joten voit verrata niiden sijaintia alkuperäiseen suunniteltuun pisteeseen CAD-tiedostossa. Katso tämä artikkeli saadaksesi lisätietoja pisteiden viennistä.

Muita asetteluasetuksia asetukset-valikosta

Jos haluat nähdä asettelunäkymäsi “työmaan pohjoiseen” -näkymässä, mene yleisiin asetuksiin, ja Näytön ja näkymän asetuksissa näet vaihtoehdon vaihtaa kartan suunta “North” (pohjoinen) -asentoon “Free” (vapaa) sijaan.

Täältä löydät myös muita asetteluasetuksia, joita voit säätää tarpeen mukaan luodaksesi haluamasi asettelukokemuksen.

Automaattinen zoomaus: Kytke päälle tai pois päältä työkalu, joka automaattisesti suurentaa näkymää pisteeseesi asettelun aikana.

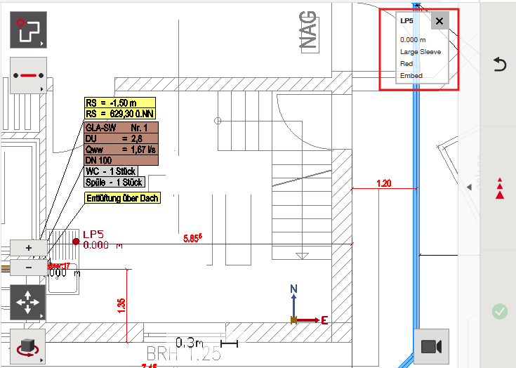
Näytettävät attribuutit: Näytä pisteiden attribuutit asettaessasi pisteitä. Tämä on sovellettavissa vain, jos olet jo lisännyt pisteattribuutteja pisteillesi. Jos sinulla ei ole pisteattribuutteja pistetiedostossasi, on todennäköisesti parasta pitää tämä näyttö pois päältä:

Muista, mitä “toleranssi” tarkoittaa asetuksissa

Saatat huomata, että työkalu vaihtaa väriä punaisesta vihreäksi asettaessasi pisteitä. Nämä värit vastaavat asetuksissa määrittämääsi toleranssia. Tässä esimerkissä toleranssi on asetettu ennalta määritettyyn “hyvään” arvoon, mikä tarkoittaa, että työkalu muuttuu vihreäksi, kun olet 8 mm sisällä pisteestäsi. Vaikka työkalu ohjaa sinua edelleen 0 mm poikkeamaan, väri auttaa osoittamaan, milloin olet asetetun toleranssin sisällä.

Huomaa, että voit muuttaa toleranssia tarpeidesi mukaisesti.

Oliko tämä artikkeli hyödyllinen?

2/2 koki tästä olevan apua

Kommentit

0 kommenttia

Kirjaudu sisään jättääksesi kommentin.