Pontkiosztás - Használati útmutató

  • Frissítve

Pontok elrendezésének bemutatója

A Pontkiosztás célja

A „Pontkiosztás” használatához először állomásoztatni kell az eszközt (azaz az eszköznek tudnia kell, hogy mely koordinátákon helyezkedik el a munkaterületen). Kérjük, győződjön meg arról, hogy állomásoztatta az eszközt, mielőtt megpróbálja használni a „Pontkiosztás” funkciót.

Ez az alkalmazás arra lett tervezve, hogy koordináták alapján vezessen különböző pontokhoz. Ezek a koordináták általában automatikusan származnak a használt CAD rajzból (például vonalvégek és körök középpontjai), de ha alkalmazható, a koordináták manuálisan is beírhatók.

Az alkalmazásról egy hasznos videó található alább:

Válassza ki az alkalmazást a menüből

Amikor készen áll a pontkiosztásra, keresse meg az alkalmazást a kezdőképernyőn vagy a projekt CAD nézetének oldalsó menüjében.

Ismerje meg a nézetet és a munkavégzési beállításokat

Miután belépett az alkalmazásba, fontos, hogy sikeres legyen a munkája, ezért határozza meg, milyen adatokkal szeretne dolgozni, valamint azt, hogy a szoftver hogyan vezeti Önt a pontokhoz.

A pontlistája

Bár nem kötelező, gyakori, hogy előre betöltött kiosztási pontokkal dolgozik. Ha ez az Ön esetében így van, gyakran előnyös, ha csak a „kiosztási pontok” jelennek meg a bal oldali pontmenüben. Ha ez hasznos lehet Önnek, szűrje a pontlistát a bal oldali pontmenü szűrőikonjára kattintva, és válassza ki, hogy csak a „kiosztási pontok” jelenjenek meg.

 

Megjegyzés: ha új kiosztási pontot kell hozzáadnia a projektjéhez a koordinátái alapján, ezt megteheti itt, a pontmenüben az „szerkesztés” ceruza ikon megnyomásával. Egyedi pontok létrehozása az alkalmazás menüjében található több „rajzolás” funkcióval is lehetséges.

További információkért a szűrésről és a pontnézeti beállításokról lásd ezt a cikket.

A nézet középre helyezése

Hasznos tudni, hogyan optimalizálhatja a munkaterület ablakát pontkiosztás közben. A jobb oldali menüből láthatja a „Nézet középre helyezése a célon” opciót. Általánosságban az a legjobb, ha ezt kikapcsolja, amikor a CAD fájlt pásztázza, hogy megtaláljon egy kiosztandó pontot, és bekapcsolja, amikor a prizma vagy lézer követésével halad a pont felé.

Ez az opció annyit tesz, hogy a nézetablakot a prizma vagy lézer aktuális helyére középre helyezi, vagy lehetővé teszi, hogy szabadon pásztázza a CAD fájlt. 

Ha ez az opció ki van kapcsolva, egy helymeghatározó ikon jelenik meg a képernyő tetején, amelyre kattintva automatikusan visszatérhet arra a helyre, ahol az eszköz a prizmához van rögzítve.

A kiosztandó pontok típusának kiválasztása

Lehetősége van kiválasztani, hogy pontosan mit szeretne kiosztani. Szeretné kiosztani a pontlistájában már meglévő pontokat („Pontok”), vagy a CAD fájl CAD elemeit, még akkor is, ha a pontok technikailag nem léteznek a pontlistában („Ideiglenes pontok”), vagy mindkettőt?

Ezek a különböző nézet- és szűrési beállítások segítenek abban, hogy a kiosztási folyamatot az Ön igényei szerint állítsa be.

Végezze el a kiosztást

Mielőtt elvégezné a kiosztást, győződjön meg arról, hogy a képernyő tetején a megfelelő ikont választotta ki annak jelzésére, hogy mivel végzi a kiosztást. Prizmához csatlakozik, vagy lézerrel dolgozik?

Ne feledje, hogy a képernyő jobb alsó sarkában található kamera ikonra kattintva megnyithat egy kamera felugró ablakot a CAD fájlon belül a kiosztás közben.

Pontok kiosztása a pontfájlból

A projektbe előre betöltött pontok kiosztásához egyszerűen érintse meg a pontokat a bal oldali pontmenüben, vagy érintse meg a pontokat a CAD fájlban, és az eszköz automatikusan elkezdi vezetni Önt a ponthoz.

Alapértelmezés szerint a beállítások úgy vezetik Önt a ponthoz, hogy feltételezik, Ön az eszköz felé néz, miközben a ponthoz sétál. Például az alábbi képernyőképen az eszköz azt feltételezi, hogy Ön rá néz, és azt javasolja, hogy a kiosztási pont középpontja 0,002 m-rel (2 mm-rel) közelebb van a fej egységhez.

Pontok kiosztása CAD alapján („Ideiglenes pontok”)

A projekt CAD elemei alapján történő pontkiosztáshoz győződjön meg arról, hogy az ideiglenes pontok vannak kiválasztva, majd kattintson arra a CAD elem típusra, amelyet kiosztani szeretne. Ezek általában vonalvégek, körök középpontjai és vonalak metszéspontjai.

Az ideiglenes pontok engedélyezésével a CAD fájlban bárhol érinthet, hogy kiosszon a kiválasztott ponttípusokból. A kiosztási folyamat ugyanaz lesz, mint az előre betöltött pontok kiosztásakor.

Pont kitűzése

Végül, amikor megnyomja a piros „mérés” gombot a képernyő jobb oldalán, „kijelölte” a pontot – és az a bal oldali kitűzött pont menüben zöld vagy piros színnel fog megjelenni attól függően, hogy a kiosztás beleesett-e az Ön által beállított tűréshatárok közé.

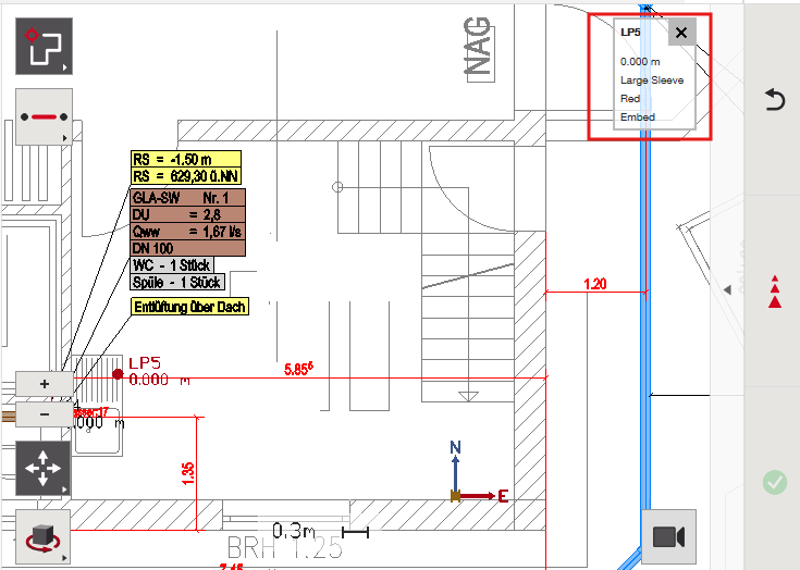
Vegye észre, hogy a jobb oldali menü alján lehetősége van a „kitűzés párbeszédablak megjelenítése” opció bekapcsolására. Alapértelmezés szerint ez be van kapcsolva, hogy további adatokat adhasson hozzá az éppen kiosztott ponthoz – például attribútum megjegyzéseket, a ponthoz tartozó réteg meghatározását vagy akár a kitűzött pont átnevezését.

Ezt a menüt kikapcsolhatja, ha nem releváns az Ön munkafolyamatához.

Amint egy pont sikeresen kiosztásra került, a szoftver azonnal vezeti Önt a következő releváns ponthoz a fájlban.

Kitűzött pontok adatainak exportálása szükség szerint

Mindig lehetősége van az adatok exportálására – a kitűzött pontokat mindig a „_Stk” jelzés követi a pont export menüben, így összehasonlíthatja azok helyét az eredeti pont CAD fájlban tervezett helyével. További információkért a pontok exportálásáról lásd ezt a cikket.

Egyéb kiosztási beállítások a Beállítások menüből

Ha inkább a „munkaterület északi” nézetben szeretné látni a kiosztást, lépjen a általános beállításokhoz, és a Képernyő és nézet beállítások között válthatja a térkép tájolását „Észak”-ra a „Szabad” helyett.

Itt még más kiosztási beállításokat is módosíthat, hogy a kiosztási élményt az Ön igényeihez igazítsa.

Automatikus nagyítás: Bekapcsolhatja vagy kikapcsolhatja, hogy az eszköz automatikusan közelítsen a pontjához a kiosztás során.

Megjelenített attribútumok: Mutassa a pont attribútumokat pontkiosztás közben. Ez csak akkor alkalmazható, ha már hozzáadott pont attribútumokat a pontjaihoz. Ha nincs pont attribútum a pontfájlban, valószínűleg jobb, ha ezt a megjelenítést kikapcsolva tartja:

Emlékezzen arra, mit jelent a „Tűrés” a beállításokban

Észreveheti, hogy az eszköz a pontkiosztás közben pirosról zöldre vált. Ezek a színek megfelelnek az általános beállításokban megadott tűréshatárnak. Ebben a példában a tűrés előre meghatározott „jó” értékre van állítva, ami azt jelenti, hogy az eszköz zöldre vált, amikor 8 mm-en belül van a ponttól. Bár az eszköz továbbra is 0 mm eltérésig vezet, a szín segít jelezni, amikor a beállított tűréshatáron belül van.

Megjegyzés: a tűrést igényei szerint módosíthatja.

Hasznos volt ez a cikk?

2/2 szavazó hasznosnak találta ezt

Hozzászólások

0 hozzászólás

Hozzászólások írásához jelentkezzen be.