Point Layout - Hur man använder

  • Uppdaterad

Demonstration av punktlayout

Syftet med Point Layout

För att använda ”Point Layout” behöver du först vara stationerad (dvs. verktyget måste veta de koordinater där det befinner sig på din arbetsplats). Var vänlig och se till att du ställer in din verktygs position innan du försöker använda ”Point Layout.”

Denna applikation är utformad för att guida dig till olika punkter baserat på koordinater. Vanligtvis hämtas dessa koordinater automatiskt från objekt inom CAD-ritningen du använder (såsom ändar av linjer och centrum av cirklar), men koordinater kan också matas in manuellt om det är tillämpligt.

En hjälpsam video om applikationen finns nedan:

Välj applikationen från menyn

När du är redo att utföra punktlayout, hitta applikationen från startsidan eller från sidomenyn i CAD-vyn av ditt projekt.

Förstå vyn och arbetsalternativen

När du är inne i applikationen är det viktigt att förbereda dig för framgång genom att bestämma vilken data du vill arbeta med, samt hur programvaran ska guida dig till dina punkter.

Din punktlista

Även om det inte är nödvändigt, kan det vara vanligt att arbeta med förinlästa layoutpunkter. Om detta är ditt fall är det ofta fördelaktigt att se till att endast ”layoutpunkter” visas i den vänstra punktmenyn. Om detta kan gynna dig, filtrera din punktlista genom att trycka på filterikonen i den vänstra punktmenyn och välj att endast ”layoutpunkter” ska visas.

 

Observera: om du behöver lägga till en ny layoutpunkt till ditt projekt baserat på dess koordinatvärden, kan du lägga till den layoutpunkten här i punktmenyn genom att trycka på ”redigera”-pennan. Annars kan unika punkter också skapas med hjälp av de olika ”rita”-funktionerna inom applikationsmenyn.

För att förstå fler filtrerings- och punktvisningsalternativ, se denna artikel.

Centrera din vy

Det är också hjälpsamt att veta hur man optimerar sitt arbetsfönster när man gör punktlayout. Från högermenyn ser du alternativet ”Centrera vy på mål.” Generellt är det bäst att ha detta avstängt när du panorera i din CAD-fil för att hitta en punkt att lägga ut, och bäst att ha detta påslaget när du följer prismat eller lasern till din punkt.

Detta alternativ centrerar helt enkelt vyfönstret på prismats eller laserens nuvarande position, eller så tillåter det dig att fritt panorera i din CAD-fil. 

När detta alternativ är avstängt visas en positionsikon högst upp på skärmen, som du kan trycka på för att automatiskt återvända till platsen där verktyget är låst till ett prisma.

Välja vilken typ av punkter du vill lägga ut

Du har också möjlighet att välja vad exakt du vill lägga ut. Vill du lägga ut punkter som redan finns i din punktlista (”Punkter”), vill du lägga ut CAD-element i din CAD-fil, även om punkterna tekniskt sett inte finns i din punktlista (”Tillfälliga punkter”), eller vill du göra båda?

Dessa många vy- och filteralternativ bör hjälpa dig att anpassa din layoutprocess efter dina önskemål.

Utför din layout

Innan du utför din layout, se till att du har valt rätt ikon högst upp på skärmen för att indikera vad du lägger ut med. Är du ansluten till ett prisma eller lägger du ut med lasern?

Kom också ihåg att du kan klicka på kameraikonen längst ner till höger på skärmen för att få ett kamerafönster inom din CAD-fil medan du lägger ut.

Lägga ut punkter från din punktfil

För att lägga ut punkter som redan är förinlästa i ditt projekt, tryck helt enkelt på punkterna i punktmenyn till vänster eller tryck på punkterna där de är placerade i CAD-filen, och verktyget kommer automatiskt börja guida dig till punkten.

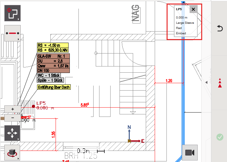
Som standard guidar inställningarna dig till punkten med antagandet att du tittar på verktyget när du går till punkten. Till exempel, i skärmdumpen nedan antar verktyget att du tittar på det, och föreslår att centrum av layoutpunkten är placerad 0,002 m (2 mm) närmare huvudenheten.

Lägga ut punkter från CAD (”Tillfälliga punkter”)

För att lägga ut punkter baserat på CAD-element i ditt projekt, se till att tillfälliga punkter är valda, och klicka på den typ av CAD-element du vill lägga ut. Vanligtvis är det ändar av linjer, centrum av cirklar och korsningar av linjer.

Med tillfälliga punkter aktiverade kan du trycka runt i din CAD-fil för att lägga ut de olika punkttyper du har valt. Layoutprocessen kommer vara identisk med hur det skulle vara om du lade ut förinlästa punkter.

Markera din punkt

Slutligen, när du trycker på den röda ”mät”-knappen längst till höger, har du ”markerat” din punkt – och den kommer att visas grön eller röd i din markerade punktmeny till vänster, beroende på om den lades ut inom de toleransinställningar du har.

Observera att längst ner i högermenyn har du alternativet att ”visa stake-dialog.” Som standard är detta påslaget för att du ska kunna lägga till ytterligare data till den punkt du just lagt ut – lägga till attributanteckningar, definiera vilket lager du vill att punkten ska ligga på, eller till och med byta namn på den markerade punkten.

Du kan stänga av denna meny om den inte är relevant för ditt arbetsflöde.

När en punkt har lagts ut framgångsrikt kommer programvaran omedelbart att guida dig till nästa relevanta punkt i din fil.

Exportera markerade punktdata vid behov

Det är alltid möjligt att exportera dina data – de markerade punkterna kommer alltid att följas av ”_Stk” i punktens exportmeny, så att du kan jämföra deras position med var den ursprungliga punkten var designad att vara i CAD-filen. Se denna artikel för mer information om punkt-exportering.

Andra layoutinställningar från inställningsmenyn

Om du föredrar att se din layoutvy i en ”arbetsplatsnord”-vy, gå till dina allmänna inställningar, och i Skärm- och vyinställningar ser du alternativet att ändra kartans orientering till ”Nord” istället för ”Fri.”

Det finns andra layoutinställningar här som du kan justera vid behov för att skapa layoutupplevelsen efter dina önskemål.

Auto Zoom: Slå på eller av verktygets automatiska inzoomning nära din punkt när du lägger ut.

Visade attribut: Visa punktattribut medan du lägger ut dina punkter. Detta är endast tillämpligt om du redan har lagt till punktattribut till dina punkter. Om du inte har punktattribut i din punktfil är det troligtvis bäst att hålla denna visning avstängd:

Kom ihåg vad ”Tolerans” betyder i inställningarna

Du kan märka att verktyget ändrar färg från rött till grönt när du lägger ut. Dessa färger korrelerar med den tolerans du har ställt in i de allmänna inställningarna. I detta exempel är toleransen satt till det förinställda ”bra,” vilket betyder att verktyget blir grönt när du är inom 8 mm från din punkt. Även om verktyget fortfarande guidar dig till 0 mm avvikelse, hjälper färgen till att indikera när du är inom den toleransinställning du har gjort.

Observera att du kan ändra toleransen till vad du föredrar beroende på dina behov.

Var denna artikel till hjälp?

2 av 2 tyckte detta var till hjälp

Kommentarer

0 kommentarer

logga in för att lämna en kommentar.